Stan 34
93.79m2
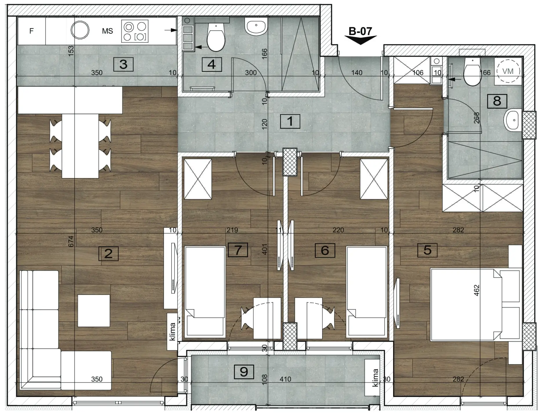
Lamela B
| Sprat | III | IV | VII | VIII |
| Br. stana | 24 | 34 | 64 | 74 |
| Lamela B - Stan 34 | ||
|---|---|---|
| br. | Prostorija | Površina |
| 01 | Hodnik | 15.27 m² |
| 02 | Dnevni boravak | 21.59 m² |
| 03 | Kuhinja | 7.67 m² |
| 04 | Kupatilo 01 | 3.86 m² |
| 05 | Spavaća soba 01 | 11.96 m² |
| 06 | Spavaća soba 02 | 8.91 m² |
| 07 | Spavaća soba 03 | 8.45 m² |
| 08 | Kupatilo 02 | 4.41 m² |
| 09 | Ostava | 2.43 m² |
| 10 | Terasa 01 | 6.78 m² |
| 11 | Terasa 02 | 2.46 m² |
| Ukupno: 93.79 m² | ||
Stanovi sličnih karakteristika
Odaberite stan po vašoj meri.
-

Lamela B | Sprat I | Stan 07 | 80.20m2
Pogledajte stan -

Lamela B | Sprat VI | Stan 57 | 80.20m2
Pogledajte stan -

Lamela B | Sprat IV | Stan 44 | 93.67m2
Pogledajte stan -

Lamela B | Sprat VI | Stan 54 | 93.67m2
Pogledajte stan -

Lamela B | Sprat VII | Stan 68 | 80.06m2
Pogledajte stan -

Lamela B | Sprat VI | Stan 58 | 80.06m2
Pogledajte stan
Kontakt forma