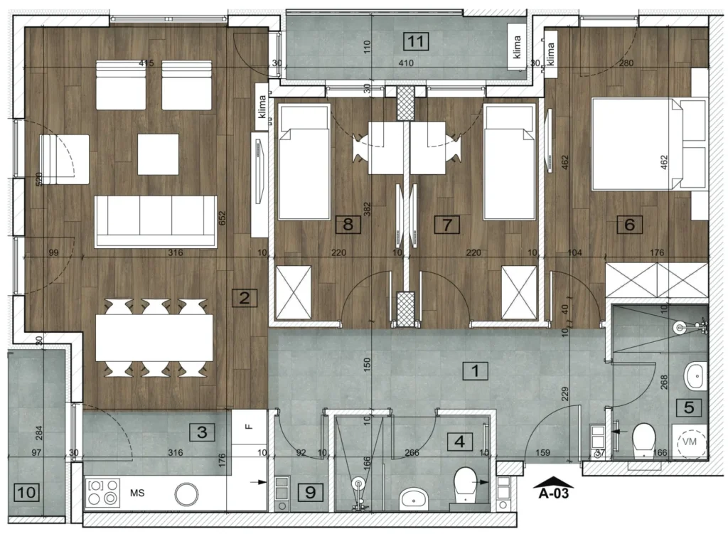
Stan 24
85.47m2
Lamela A
| Sprat | I | II | III | IV | V | VI | VII | VIII |
| Br. stana | 03 | 10 | 17 | 24 | 31 | 38 | 45 | 52 |
| Lamela A - Stan 24 | ||
|---|---|---|
| br. | Prostorija | Površina |
| 01 | Hodnik | 9.23 m² |
| 02 | Dnevni boravak | 24.86 m² |
| 03 | Kuhinja | 5.40 m² |
| 04 | Kupatilo 01 | 4.28 m² |
| 05 | Kupatilo 02 | 4.31 m² |
| 06 | Spavaća soba 01 | 12.94 m² |
| 07 | Spavaća soba 02 | 8.07 m² |
| 08 | Spavaća soba 03 | 8.04 m² |
| 09 | Ostava | 1.32 m² |
| 10 | Terasa 01 | 2.67 m² |
| 11 | Terasa 02 | 4.35 m² |
| Ukupno: 85.47 m² | ||
Stanovi sličnih karakteristika
Odaberite stan po vašoj meri.
-

Lamela A | Sprat IV | Stan 23 | 85.48m2
Pogledajte stan -

Lamela A | Sprat V | Stan 30 | 85.48m2
Pogledajte stan -

Lamela A | Sprat V | Stan 31 | 85.47m2
Pogledajte stan -

Lamela A | Sprat VI | Stan 38 | 85.47m2
Pogledajte stan -

Lamela A | Sprat IV | Stan 27 | 82.62m2
Pogledajte stan -

Lamela A | Sprat VI | Stan 42 | 82.64m2
Pogledajte stan
Kontakt forma