Skip to content
Kompleks
Stanovi
Garaže
Kompleks
Stanovi
Garaže
Lokali
Pitali ste
Kontakt
Lokali
Pitali ste
Kontakt
Kompleks
Stanovi
Garaže
Lokali
Pitali ste
Kontakt
Kompleks
Stanovi
Garaže
Lokali
Pitali ste
Kontakt
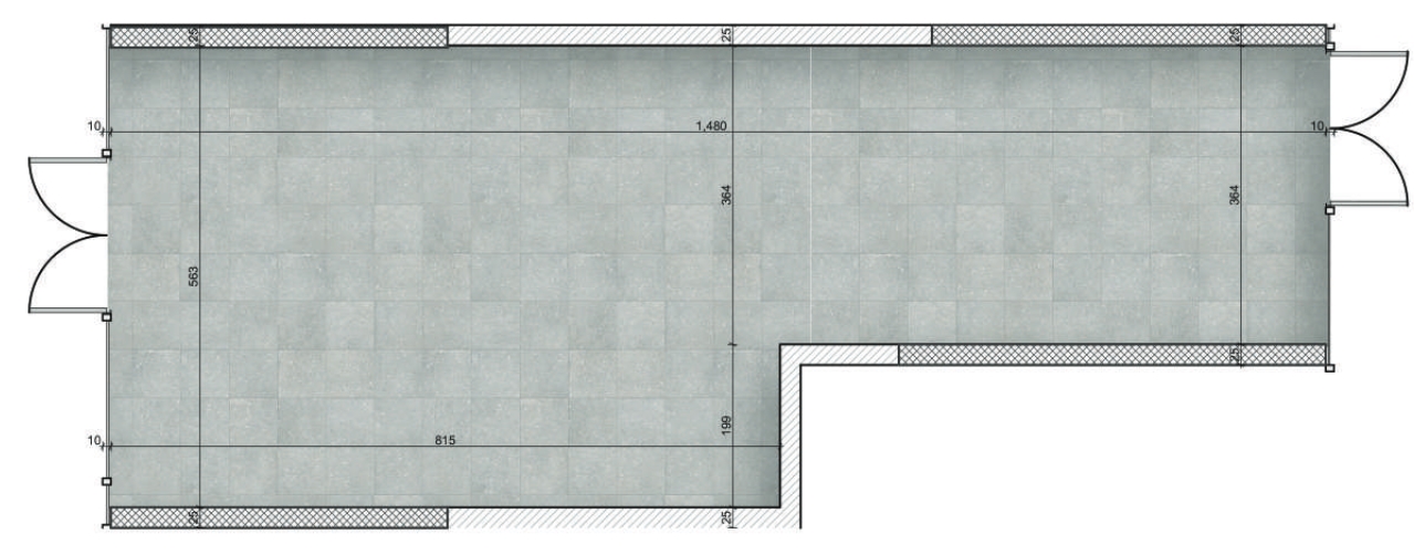
Lokal C2
67.79m
2
Lamela C
lokali
Prodato
Kontaktirajte nas
Preuzmite PDF
Pogledajte sve lokale u ponudi
Svi lokali
Edit Template