Odaberite stan ispod

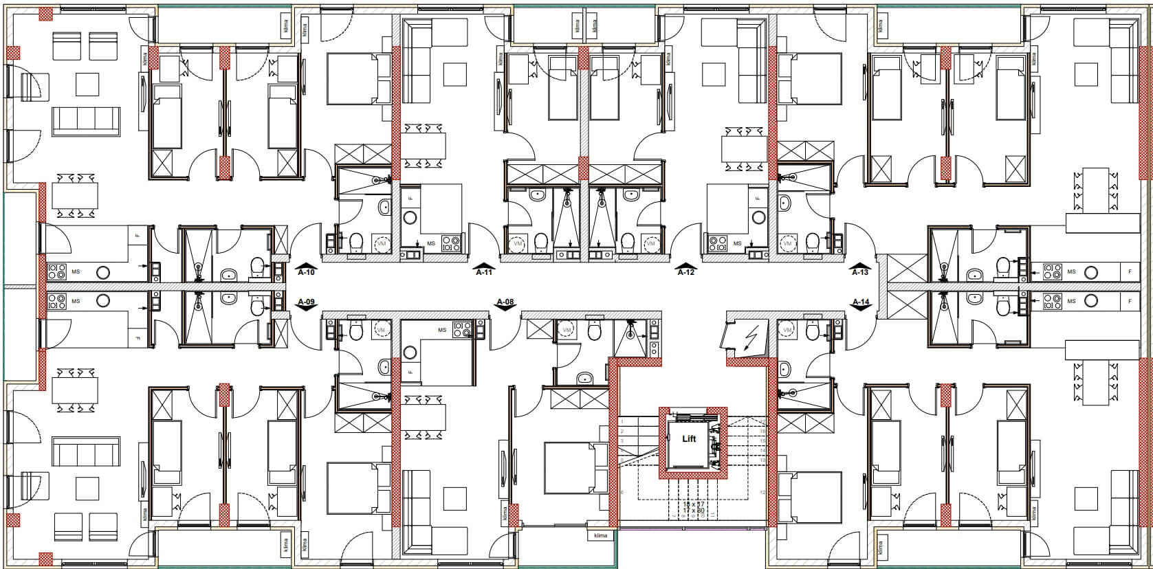
Pogledajte detaljnije osnovu sprata i raspored stanova ispod. Kliknite na željeni stan kako biste saznali više o njegovim karakteristikama, rasporedu prostorija i kvadraturi.

Na raspolaganju smo za sva dodatna pitanja

Edit Template